Deze sfeervolle en duurzame tussenwoning is gebouwd in Amerikaanse New-England-stijl en weet direct te imponeren met zijn houten details en uitnodigende veranda.
De woning ligt aan een prachtige, groene woonomgeving met een wandelpad voor de deur en het parkeren achter een groene barrière. Binnen tref je een fijne woonkamer met open, lichte keuken, drie comfortabele slaapkamers en een stijlvolle badkamer met ligbad en inloopdouche. De royale zolder biedt ruimte om één of twee extra slaapkamers met vliering te realiseren. De achtertuin is ook een heerlijke plek om te zijn met twee fijne zitjes inclusief overkapping.
Bouwjaar: 2017
Inhoud: circa 410 m³
Woonoppervlakte: circa 112 m²
Perceeloppervlakte: 120 m²
Verwarming: HR cv-ketel
Energielabel: A+
Begane grond:
Entree met toiletruimte, meterkast, trapopgang en toegang tot de woonkamer. De gehele begane grondvloer is voorzien van vloerverwarming. In de hal liggen tapijttegels en zijn de wanden voorzien van kalkstuc. De toiletruimte is voorzien van een hangcloset met fonteintje en is afgewerkt met tegels op de vloer, deels betegelde wanden met spuitwerk erboven en een spuitwerk plafond. De woonkamer is voorzien van een fraaie PVC-vloer, alle wanden zijn gesausd en het plafond is gespoten. In de woonkamer tref je een ruime trapkast.
De keuken ligt aan de voorzijde en kijkt uit over de groenstrook voor de woning. Het keukenblok staat recht opgesteld en is voorzien van een 5-pits gaskooktoestel, RVS afzuigkap, koelkast, vaatwasser en combimagnetron. Het aanrechtblad is van composiet en de achterwand is uniek te noemen; een aluminium plaat met een foto van een oude kaart van Tilburg erop geprint.
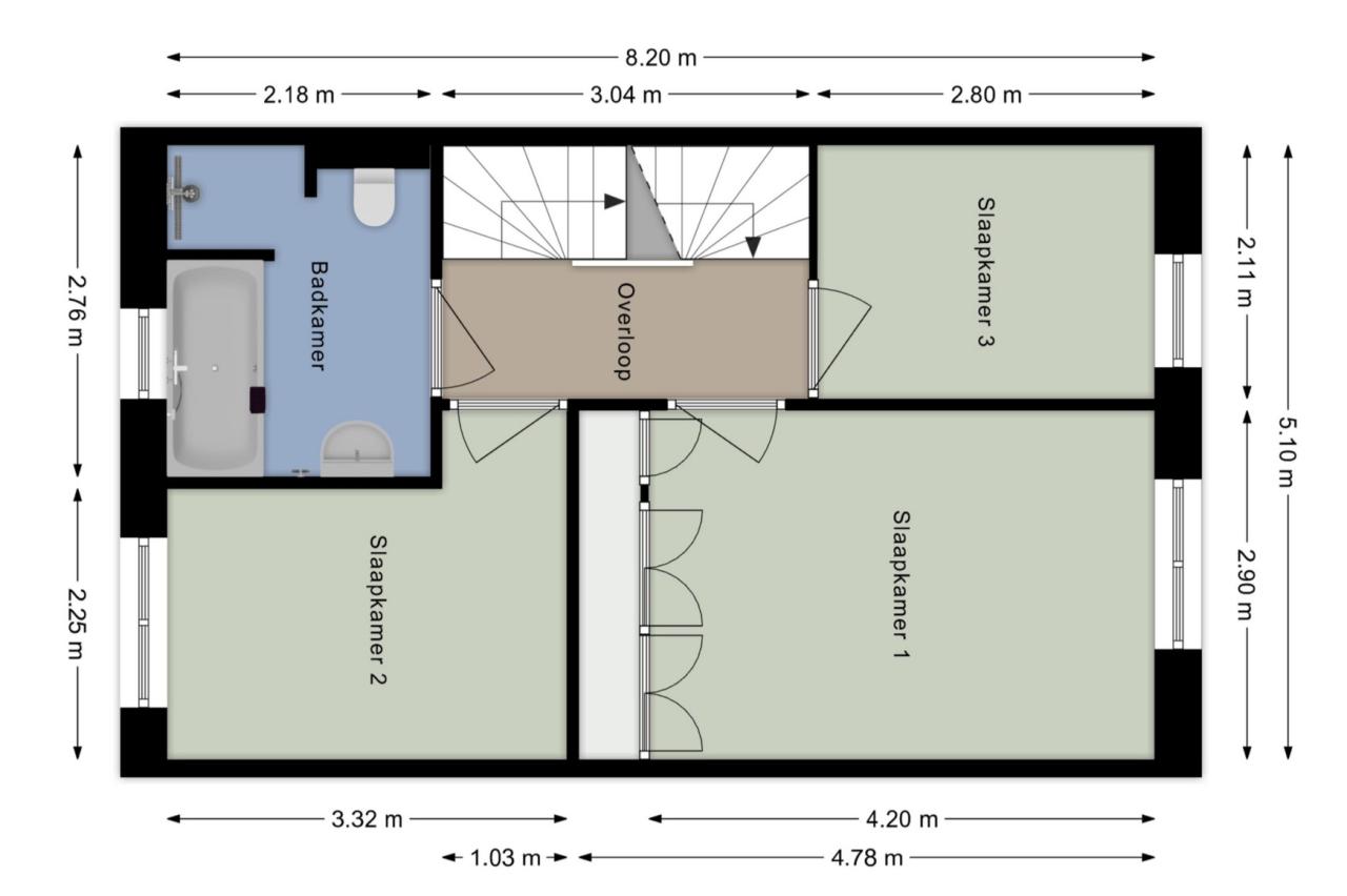
Eerste verdieping:
Overloop met toegang tot drie slaapkamers, de badkamer en de trapopgang naar zolder. Op de gehele verdieping liggen tapijttegels.
Slaapkamer 1 en slaapkamer 3 zijn beide aan de achterzijde gelegen en zijn circa 14 en 6 m² groot.
Slaapkamer 2 ligt aan de voorzijde en heeft een grootte van circa 8 m².
Alle drie de kamers zijn afgewerkt met tapijttegels op de vloer, gesausde wanden, een spuitwerk plafond en alle te openen ramen zijn voorzien van een hor.
In slaapkamer 1 tref je een op maat gemaakte vaste kastenwand.
De badkamer is ruimtelijk en compleet uitgevoerd met een ligbad, een inloopdouche een hangcloset en een wastafel. Op de vloer ligt een antracietkleurige tegel en de wanden zijn geheel betegeld met een witte wandtegel gecombineerd met een antracietkleurige wandtegel.
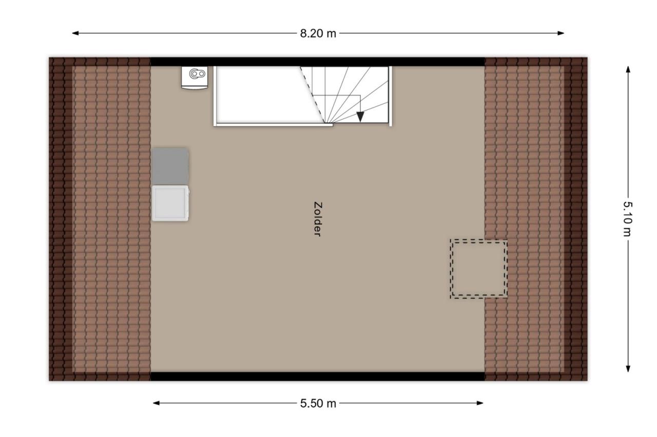
Tweede verdieping:
De zolder is keurig afgewerkt met ook hier een tapijttegel op de vloer en gesausde wanden. Aan de achterzijde is een groot Velux dakraam aanwezig en ter hoogte van de trapopgang hangt de cv-ketel, de unit van de mechanische ventilatie en tref je de aansluitingen voor de wasapparatuur. Voor wie zou willen, kun je hier nog extra kamers en een bergzolder realiseren.
Buiten:
Aan de voorzijde heb je een veranda waar je heerlijk in de zon kunt zitten, uitkijkend over de groenstrook met speelweide.
De achtertuin is ook een heerlijke plek om te vertoeven. Het terras aan de gevelzijde is overkapt met een licht doorlatend dak, zodat je ook met wat regen nog in de tuin kunt zitten. Voor de houten berging, achter in de tuin, is een tweede terras gemaakt, waar je vanaf het voorjaar heerlijk in het zonnetje kunt zitten. Met een stukje gazon en diverse planten is het een mooi en sfeervol geheel. Aan de gevelzijde is een waterkraantje aanwezig.